Kitchen/Dining Design

Project type: Extension

Location: Birmingham, UK

Year: In progress

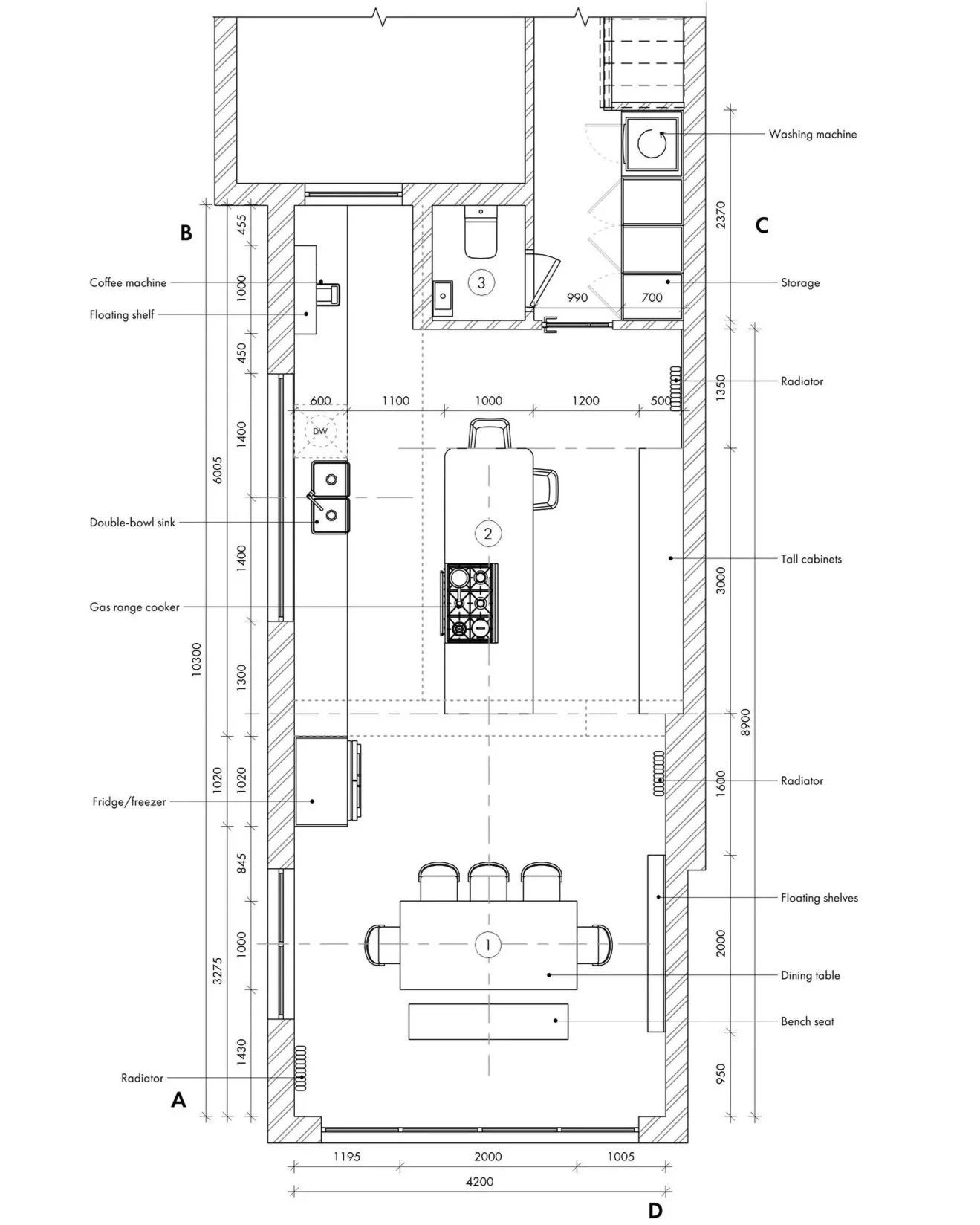
The main goal of this extension was to create a spacious, welcoming environment for family life and everyday gatherings. The design focused on achieving a functional and organised layout where every item has its place, ensuring practicality and a clean, uncluttered look. Storage solutions were crucial in maintaining a tidy space while keeping everything easily accessible. At the heart of the room stands a multi-functional kitchen island, serving as a cooking station and a social hub where family and friends can sit, chat, and share meals. The result is a bright, balanced, and harmonious space that seamlessly blends comfort, functionality, and modern design aesthetics — perfect for daily use and entertaining.

Service provided: Concept design, spatial planning, lighting design, material sourcing

Previous
Previous

En-suite