Open Plan Kitchen & Dining Layout Transformation – Birmingham

A space planning project for a family home in Hollywood, Birmingham — transforming a disconnected kitchen and dining layout into a cohesive open-plan space

Project Overview

Location: Hollywood, Birmingham, UK

Property Type: Detached house (3 bedrooms)

Project Scope: Kitchen & Dining Concept Design

Project Stage: Concept & Design Phase

This project focused on transforming two separate spaces — a compact kitchen and an adjacent dining room — into a cohesive, functional open-plan layout tailored for modern family living. The property is a detached home in Hollywood, a residential suburb in the south of Birmingham — an area where many families are choosing to extend and reconfigure rather than upsize.

The Client Brief

 The project was developed for a family of four — a couple with two young children — who wanted to create a more social, practical kitchen-dining area.

Their main goals were:

ʉۢ A united kitchen and dining space for everyday family life

ʉۢ An open-plan layout suitable for entertaining

ʉۢ A kitchen island with seating

ʉۢ A walk-in pantry for additional storage

ʉۢ Plenty of integrated storage throughout

ʉۢ Materials that are durable, practical, and easy to maintain

 The project also included extending the kitchen footprint by replacing an outdated conservatory.

The Starting Point

 The existing layout consisted of two enclosed rooms:

ʉۢ Kitchen: approx. 11.6 sq.m

ʉۢ Dining room: approx. 12 sq.m

 In addition, there was a conservatory at the rear of the property that was rarely used due to poor thermal performance — too hot in summer and too cold in winter.

 Overall, the space felt:

ʉۢ disconnected

ʉۢ restrictive

ʉۢ underutilised

 Despite having a reasonable footprint, it did not support modern family living or social interaction. This is a pattern seen across many Birmingham homes of this era — the layout made sense for a different way of living, but no longer reflects how families actually use their kitchen and dining spaces today.

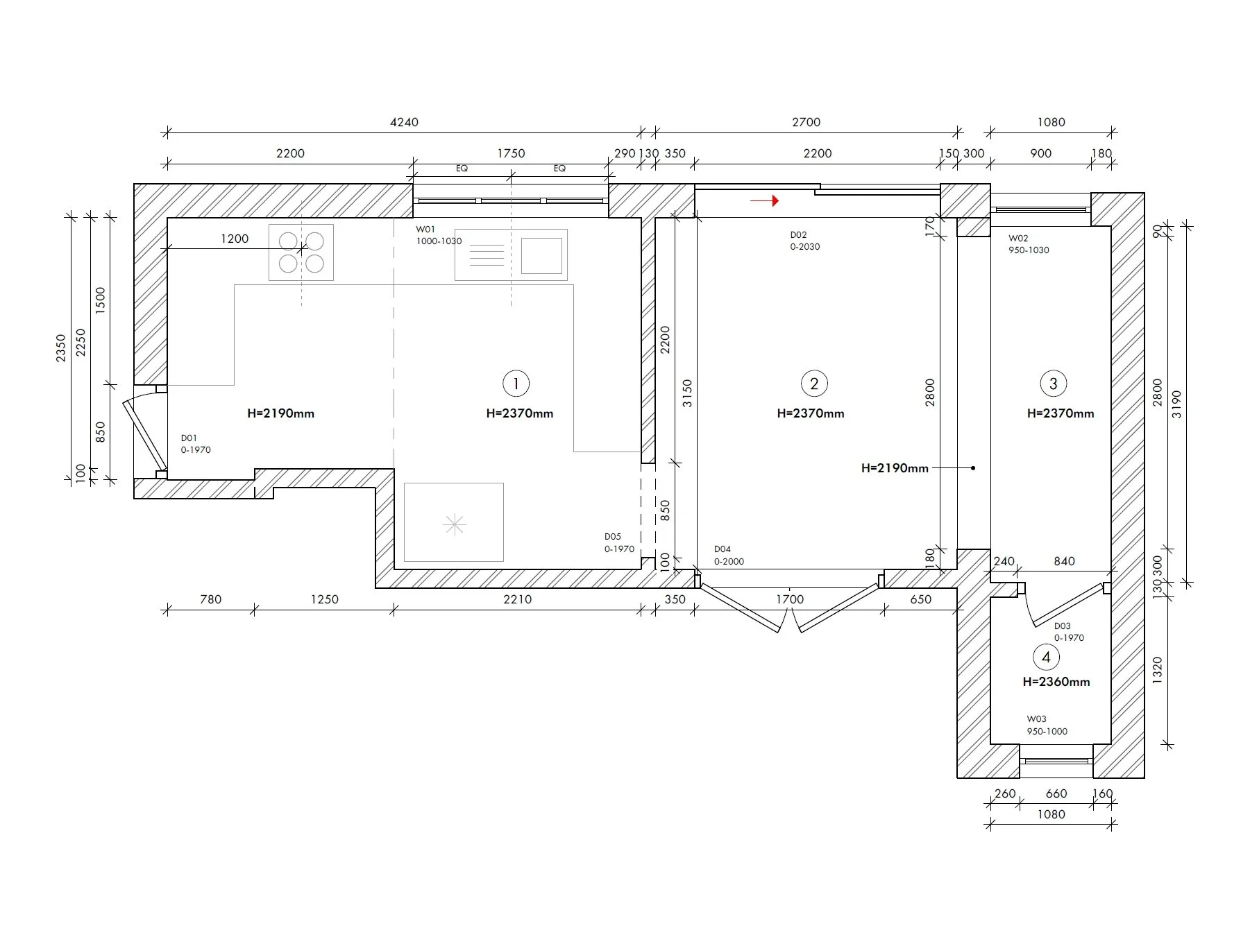
Existing kitchen and dining floor plan before open plan layout redesign in Birmingham

Existing layout before redesign – separate kitchen and dining spaces with limited flow

Key Challenges

  • The kitchen and dining room were completely separated

  • The kitchen felt compact and lacked usable workspace

  • The conservatory was not functional

  • Circulation through the space was inefficient

  • Storage was not optimised for a busy household

The Space Planning Solution

To unlock the full potential of the space, the approach focused on reconfiguring the layout rather than simply opening it up.

Extending the Footprint

The conservatory was removed and replaced with a new extension, adding approximately 12 sq.m of usable internal space.

This significantly improved the proportions and allowed for a more functional layout. For Birmingham homeowners considering a similar project, replacing an underperforming conservatory with a properly insulated extension is often one of the most cost-effective ways to gain meaningful internal space without moving.

Kitchen extension layout plan showing added rear extension to create open plan kitchen dining space in Birmingham home

The new extension replaces the old conservatory, creating additional space for a more functional and open kitchen layout

Repositioning Kitchen and Dining Areas

Instead of keeping the original arrangement, the kitchen and dining areas were swapped:

  • The kitchen was relocated to the extended area, allowing for a more generous and functional layout

  • The dining area moved into the original kitchen space, creating a compact but well-defined zone

This decision was key to making the overall layout work efficiently.

Improving Circulation and Access

The new layout creates:

  • Clear and intuitive movement between zones

  • Direct access to storage areas

  • A more natural connection between the kitchen and dining

Proposed open plan kitchen dining layout with island and pantry in Birmingham home renovation

Proposed layout showing open-plan kitchen and dining with island, improved circulation, and integrated pantry

Introducing a Walk-In Pantry

A previously inefficient area was transformed into a walk-in pantry, now:

  • Easily accessible from the kitchen

  • Increasing overall storage capacity

  • Supporting a more organised and clutter-free main space

Designing a Functional Kitchen

Relocating the kitchen made it possible to include:

  • A central kitchen island with seating. Sizing a kitchen island correctly is one of the most common points where layouts go wrong — see the full island sizing guide here.

  • Clear separation between cooking, preparation, and dining areas

  • Smooth circulation for multiple users

Furniture & Functional Decisions

  • Dining bench seating under the window allowed for a larger table (up to 8 people) without requiring clearance on all sides

  • Kitchen island seating for three, supporting casual dining and flexible use

  • A dedicated coffee and hot drinks station was introduced

  • Tall cabinetry with integrated appliances

3D layout plan of open plan kitchen dining space with island seating and walk-in pantry – Birmingham home

3D layout illustrating zoning of the open-plan kitchen and dining space, including island seating, walk-in pantry, and dedicated dining area

Design Development

With the layout resolved, the design focused on creating a space that feels calm, cohesive, and practical for everyday use. The material palette was developed to suit a family home in Birmingham — durable enough for daily life, but considered enough to feel designed rather than purely functional.

Material and Colour Palette

  • Sage green cabinetry adds depth and connects the space to the garden

  • Oak elements introduce warmth, with slatted oak detailing on the island creating a subtle focal point

  • Black accents provide contrast and definition

  • Fluted glass cabinetry adds lightness and a soft vertical rhythm

  • A neutral grey wall finish keeps the backdrop understated, allowing the main materials to stand out.

The result is a balanced, timeless aesthetic connected to its environment.

Sage green was chosen not just for its aesthetic — it's one of the most enduring kitchen colours of the moment. See the full kitchen colour guide for 2026 for context on why muted greens are replacing darker tones.

Practical Material Choices

  • Quartz worktops — durable, non-porous, and easy to maintain. For a full breakdown of why quartz was chosen over other materials, see the guide to the best kitchen worktop material in the UK.

  • Engineered wood flooring in a chevron pattern

  • A considered mix of laminate and painted MDF fronts, chosen for the balance they strike between durability and a genuinely handcrafted feel.

 Every choice supports long-term usability.

Kitchen material palette with sage green cabinetry, oak finishes and quartz worktop for open plan kitchen design in Birmingham

Material palette combining sage green cabinetry, natural oak, and durable quartz worktop, creating a calm and practical open-plan kitchen design

Lighting Strategy

Lighting was designed in layers:

  • Task lighting for kitchen worktops and the island ensures comfortable everyday use

  • Linear lighting above the island acts as both task and feature lighting

  • Pendant lighting above the dining table defines the dining zone and adds a softer, ambient feel

  • Wall lighting in the dining area creates a more intimate atmosphere

  • Additional lighting at the hot drinks station highlights this dedicated zone and improves usability

Kitchen lighting design plan showing task, ambient and feature lighting zones for open plan kitchen dining space in Birmingham

Lighting strategy designed in layers, combining task, feature, and ambient lighting to support different zones within the open-plan kitchen and dining space

Final Outcome

 The transformation resulted in a spacious and highly functional open-plan kitchen and dining area.

  • The space increased from approx. 25 sq.m to 39 sq.m (including pantry)

  • The layout now supports cooking, dining, and socialising in one cohesive environment

  • The kitchen has become a central hub for family life

  • Circulation and zoning now feel natural and intuitive

 What was once a disconnected layout is now a well-structured, practical, and welcoming space designed around how the family lives. This project is a good example of what's achievable in a typical Birmingham detached home when layout is treated as the starting point rather than an afterthought — before materials, finishes, or fittings are even considered.

If your home has a similar layout challenge, the starting point is always the floor plan.

How to Layout an Open Floor Plan — a practical guide for homeowners at the planning stage.

More Open-Plan Kitchen Projects

  • Open Plan Kitchen-Dining – Birmingham

    A semi-detached Birmingham home redesigned around a new kitchen-dining layout with bespoke cabinetry and defined zones.

Planning an Open-Plan Kitchen in Birmingham?

Layout decisions made early save time, money, and costly mistakes later. If you're at the thinking or planning stage, this is the right moment to get the layout right.

Send me your floor plan and a few notes on what you're hoping to achieve. I'll review your space and come back to you with initial thoughts — no obligation, no sales pitch.

→ See how Space Planning & Layout Design works

→ Explore Kitchen & Open-Plan Interior Design

Next
Next

Open Plan Kitchen-Dining in Birmingham - Morello Cherry